
































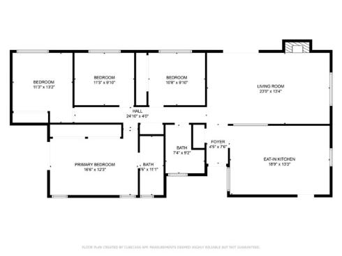
Welcome to 2873 Regis Lane, a charming home located in the desirable Mesa del Mar neighborhood on a quiet cul de sac. Situated on an expansive lot, this property offers 4 bedrooms and 2 baths of thoughtfully designed living space. Step into the beautifully remodeled kitchen, where style meets functionality, making it the perfect hub for hosting family and friends. The primary bedroom features convenient access to the backyard through sliding doors, providing a serene retreat. The outdoor space is an entertainer’s dream. Enjoy a sparkling pool, a cozy fire pit, and lush professional landscaping that creates a tranquil atmosphere. There’s also a grassy area, ideal for pets to play and roam freely. Whether you’re relaxing or hosting gatherings, this home combines comfort and practicality with modern updates and outdoor charm. Details we want to make sure you notice are the newer roof, air conditioner, dutch door and relaxing backyard. Don’t miss this incredible opportunity—schedule your tour today!