


























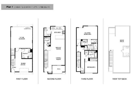
Welcome to 1515 Sullivan Avenue, Costa Mesa! This upgraded 2-bedroom, 3.5-bathroom corner-unit loft blends modern living with coastal charm. Designed as a versatile three-story live/work space, it offers flexibility and style in one of Costa Mesa’s most sought-after communities. The ground floor is multi-functional—perfect for a home office, client meetings, creative studio, or bonus room. Complete with a full bathroom, it allows for a seamless separation between work and home life. On the main level, natural light floods the open-concept living space, complemented by a stylish faux brick accent wall and built-in shelving. The layout is ideal for entertaining, whether hosting friends and family or preparing meals in the chef-inspired kitchen, which boasts sleek stainless steel appliances, ample counter space, and modern finishes. The butler’s pantry/bar area is a standout feature, equipped with a wine and mini fridge, open shelving, and extra prep space—perfect for effortless entertaining. Step outside to the private balcony and enjoy stunning sunset views. The third floor has two tranquil bedrooms dedicated to rest and relaxation. The primary suite offers a luxurious en-suite bathroom and a spacious closet, while both bedrooms are updated with modern light fixtures and newer carpeting (installed just a year ago). A laundry closet, linen storage, and additional cabinets provide extra convenience. A true highlight of this home is the private rooftop deck, offering 360-degree panoramic views of the city skyline and ocean. Whether dining al fresco, watching the sunset, or enjoying the fresh coastal breeze, this space is your oasis. Nestled in the highly desirable Level One community (with only 60 homes), this loft offers modern convenience in a vibrant setting. Enjoy walking and biking distance to the beach, with easy access to Lido Marina Village, Hoag Hospital, PCH, Newport Beach Peninsula, and major freeways (55, 73, 405). You're also just around the corner from 17th Street and Westcliff Shopping Center, home to fantastic boutiques, trendy coffee shops, and top-rated restaurants! Additional features include an attached two-car garage with built-in storage, epoxy floors, and a brand-new garage door opener. This is more than just a home—it's a modern live/work marvel near the coast. Don’t miss the opportunity to make it yours!