












































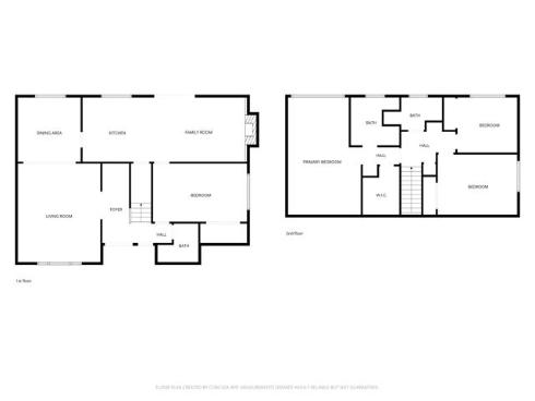
Exceptional opportunity in one of Brea's most sought-after neighborhoods in the East Brea, near Yorba Linda area. Located in the highly regarded Golden Elementary attendance area. (More on that below*)!This spacious two-story, 4 bed 3 bath home offers a versatile floor plan that is increasingly difficult to find. The layout includes a generously sized downstairs bedroom and full bath with walk-in shower, providing ideal flexibility for multigenerational living, extended family, guests, or a private home office. Upstairs features the primary ensuite along with 2 additional bedrooms and a guest bath, creating a comfortable and functional living environment.Carefully maintained by the same family for four decades, the home's interiors reflect their original character and offer a wonderful opportunity for the next owner to thoughtfully update and personalize over time while enjoying an outstanding location and versatile floor plan designed for comfortable everyday living. Situated in a quiet residential neighborhood known for strong community appeal and convenient proximity to parks, trails, shopping, dining, and major commuter routes. Carbon Canyon Regional Park, Olinda Ranch Park, and the Brea trail system are all nearby, offering abundant outdoor recreation.BEDROOM SIZES Downstair Bed: 17'3''x10'11''Primary Bed: 22'2''x13'6''Guest Bed 1: 11'1''x14'10''Guest Bed 2: 11'5''x10'7''*Golden Elementary, just a 1/2 mile away, also offers a Gifted and Talented (GATE) program. Golden has received the state's highest recognition for exceptional results, the California Distinguished Schools Program, multiple times, and as recently as 2025. Golden is routinely ranked in the top ~1% of elementary schools in the state of California (Ex: #56 US News and World Report), and top ~2% in the United States. The Placentia / Yorba Linda school district also features the highly regarded Tuffree Middle, and El Dorado High Schools.