
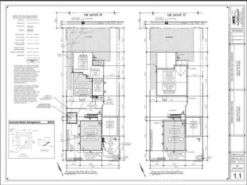
(Asking price is for the house only. Construction will be done with seperate agreement) Exceptional opportunity to acquire a nearly shovel ready multi unit compound in the heart of Brea with plans already submitted to the city. This property is being offered with a unique build to suit structure, where the seller is also the builder, allowing buyers to collaborate on construction and customize finishes while avoiding the complexities of managing their own build. The proposed project includes four total units consisting of a main residence, a Junior ADU, a detached ADU, and an SB9 unit. The front home is designed to be converted into a two story structure, significantly increasing total living area and maximizing the full potential of the lot. Once completed, the property will function as a true compound with flexible living options and strong long term value. Sale of the property is contingent upon construction of the project by the seller, providing buyers a streamlined path to ownership with a trusted build process already in place. This setup is ideal for owner users seeking multi generational living, investors looking for multiple income streams, or buyers wanting to secure a rare Orange County compound without starting from scratch. Prime Brea location close to top rated schools, shopping, dining, and convenient freeway access. Opportunities with submitted plans, multiple units, and a builder led execution are extremely rare.