




























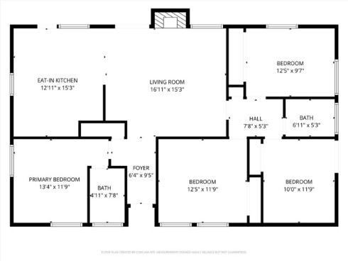
This cozy home sits on a 7,204 sq. ft. lot and offers 4 bedrooms and 2 bathrooms. Recent upgrades include a newer roof and dual-pane windows. The remodeled kitchen features granite countertops and newer appliances, and newer water softener system, while central heating and air conditioning provide year-round comfort. The home is clean, well-maintained, and move-in ready and was recently utilized as a successful Airbnb. The spacious lot also offers excellent potential to add an ADU and Junior ADU, creating additional living space or rental income opportunities.