







































































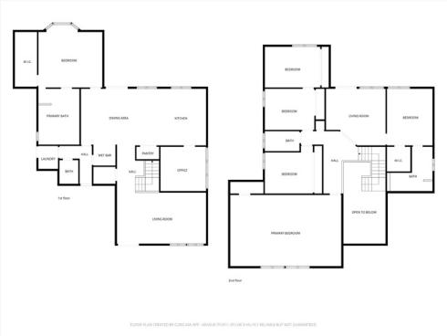
This expansive Anaheim Hills residence offers 4–5 bedrooms and 4 bathrooms, set in a quiet no-HOA enclave with no rear neighbors and breathtaking panoramic views of the canyon, mountains, and nature reserve. Enjoy peaceful sunrises, exceptional privacy, and a highly desirable hillside setting. Designed for entertaining and everyday comfort, the home features a large great room ideal for a home theater, two wet bars, seamless indoor-outdoor living, a wrap-around view deck, multiple patios, indoor and outdoor BBQ areas, and a private spa retreat. The flexible layout includes a permitted downstairs primary suite with beautiful views, a second primary bedroom upstairs, and two office spaces—perfect for multi-generational living or working from home. Bright living areas capture natural light and scenic outlooks throughout. Additional highlights include low-maintenance landscaping, automatic attic ventilation, extra storage shed, built-in garage cabinetry, newer roof, updated HVAC and water heater, water softener and filtration system, and direct access toward canyon trails. Layout note: Tax records reflect 4 bedrooms and 3 bathrooms; the home now offers 4 bathrooms by permit, with a potential 5th bedroom conversion without permits. Buyer to verify. A rare opportunity to own a private view home offering space, flexibility, and tranquil Anaheim Hills living.