







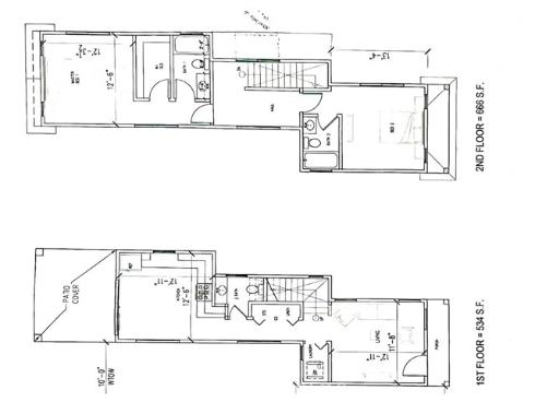
SELLER NEEDS TO SELL IMMEDIATELY. WANTS FAST CLOSE OF ESCROW....GREAT INVESTOR OPPORTUNITY!...TWO LOTS are included together..SEE PHOTO (Lot #1 is 8,140 sq ft, Lot #2 is 5,500 sq ft.) ADU PLANS ARE ALSO ALREADY APPROVED BY THE CITY. See photo of approved plans for 2 story 1200 sq ft ADU that goes on the front lot directly behind the main house, (Back lot is not buildable).... Amazing view of snow capped mountains from the master suite. Seize this rare opportunity to own this big family home in a great school district with newer tile roof, newer dual paned windows and newer kitchen and bathroom, newer floors downstairs, Big three car garage, cozy fireplace, NO HOA. Peaceful backyard with fountain & fish pond, and so much more. This is a must see home!!!