





















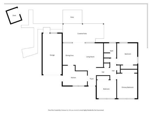
Nestled in a desirable and well-established Anaheim community, this charming 3-bedroom home is a perfect blend of comfort, convenience, and character. Filled with abundant natural light, the inviting bedrooms and functional living spaces make it ideal for everyday living. Pride of ownership shines through in every detail, from the meticulously maintained interior to the recently installed new roof. The home is truly move-in ready, with a welcoming curb appeal, a spacious front yard, and a backyard adorned with lush fruit trees, a private oasis to enjoy year-round. Location is everything, and this home delivers! Situated near major freeways, the property makes commuting across Orange County and beyond a breeze. Grocery stores, shopping centers, and a variety of dining options are just moments away. For entertainment, you’re only minutes from the magic of Disneyland® Park and Disney California Adventure® Park, as well as the thrills of Angel Stadium and the Honda Center, hosting year-round sports, concerts, and live events. This neighborhood is known for its family-friendly atmosphere, tree-lined streets, and easy access to parks, schools, and community amenities. Whether you’re catching a game, enjoying local dining, or simply relaxing at home under the shade of your fruit trees, this Anaheim gem offers a lifestyle you’ll love. Don’t miss the chance to make it yours!