





































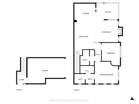
Move-in ready home in the beautiful Summit Court community of Anaheim Hills. This beautiful 2 bedrooms 2 bathrooms Carriage Model is an above the garage end unit with only one shared wall. Located at the end of the cul-de-sac with a finished 1 car extended and finished(epoxy floor) garage with an additional assigned 1 car space carport- very quiet and private. The spacious open floor plan effortlessly connects the living room, dining room, and kitchen, making it perfect for entertaining and family gatherings. Two large bedrooms including a master en suite bathroom and walk-in closet and built-in entertainment center and dresser; both bathroom vanities have upgraded cabinets and granite tops . Ceiling fans in both bedrooms and in dining area. Milgard windows throughout. Designer hardwood flooring throughout main living area. The living area has a cozy fireplace with custom mantle and access to the private balcony with the serene views of Oak Canyon. Beautiful chef’s kitchen with white cabinetry, granite countertops and stainless-steel appliances(refrigerator included) and deep sink. The community offers a club house, pool, fitness center and playground for kids. Located in the heart of Anaheim Hills. This home is within walking distance to parks, hiking, and biking trails, while being conveniently close to shopping, restaurants, and the 241 Toll Road. This home is within the award-winning Orange Unified School District, including Running Springs Elementary, El Rancho Middle, and Canyon High School. Hurry this home will not last long!!