
















































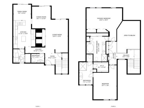
Welcome to 6164 E. Morningview Drive in Anaheim Hills. With approximately 1,967 square feet of living space, this home boasts a bright and open floor plan enhancing the beautiful wood ceilings. The skylights, windows and sliding glass doors flood the home with natural light. A travertine floor entryway leads into the living room with an impressive stacked stone fireplace and hearth. Upstairs shows off two huge primary bedroom suites, each with a large private bathroom. The primary suite bathroom boasts a skylight, jetted tub, walk-in shower with glass door, dual vanities, granite counter, travertine flooring, and closet space. The second bathroom suite features a walk-in closet, travertine flooring with custom glass walk-in shower. Both bedrooms have ceiling fans, vaulted ceilings and lots of windows. The impressive kitchen boasts granite counters, recessed lighting, cooking island, abundant cabinetry and counter space, along with a breakfast bar and eating area. The kitchen, dining room and living room offer sliding glass doors to the expansive backyard with a large covered patio, grass area, landscape lighting, fountain, lemon tree, and soaring palms. Enjoy a serene and peaceful setting in your backyard. A half bathroom is located downstairs. A separate laundry room leads to a two car garage. Dual pane vinyl windows, new flooring, fresh paint, and rainbird backyard sprinklers, are some of the many upgrades. This home sits on a quiet cul-de-sac street in the Royal Circle Village Community. Centrally located near top rated schools, shopping, dining, Saddle Club, golfing, parks and hiking trails, and easy freeway access, this is wonderful place to call home.